Rathaus Winseler
Previous
Pause
nächste Seite
1
/
1
Perspektive des Rathauses mit seiner Erweiterung
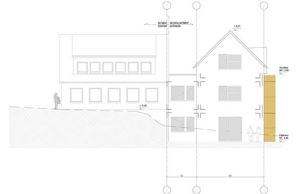
Ansicht Norden
Ansicht Osten
Ansicht Süden
Straßenansicht vor Umbau
Straßenansicht nach Umbau
Ansicht Neubau
Innenansicht Treppenhaus
Gemeinde Winseler
Fertigstellung 2011
Aktuelles
Info
Team
Kontakt
Stadtplanung
Umweltplanung
Raumplanung - Studien
Freiraumplanung
Architektur
Arztpraxis Trier
Aussegnungshalle Doncols
Dachausbau Trier
Eingangsbereich Trier
Feuerwehr Doncols
Kirche Noertrange
Kirche Doncols
Rathaus Winseler
Städtebauliche Wettbewerbe