Moutfort
Previous
Pause
nächste Seite
1
/
1
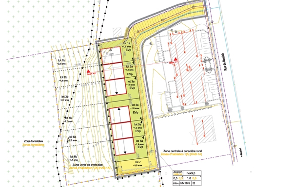
PAP Plan
Gegenüberstellung von Ist-Zustand und Planung – Nutzung und Gebäudevolumen
Schematischer Geländeschnitt
privat
Bebauungsplan (PAP) Moutfort –Konzept
31 Ar, Fertigstellung 2008
Aktuelles
Info
Team
Kontakt
Stadtplanung
PAG
Plan / Schéma Directeur
PAP
Wohnbebauung
Altrier
Brouch
Hemstal
Marnach
Moutfort
Munsbach
Rodange
Gewerbe
Umweltplanung
Raumplanung - Studien
Freiraumplanung
Architektur
Städtebauliche Wettbewerbe