Mutfert
Previous
Pause
Next
1
/
1
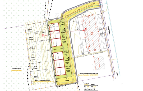
PAP Plang
Géigeniwwerstellung vu Bëstand an Planung – Affektatioun an Volumétrien
Schematesch Coupe
privat
Bebauungsplang (PAP) Reienhaiser Mutfert –Konzept
31 Ar, Ofgeschloss 2008
Aktuelles
Info
Team
Kontakt
Urbanismus
PAG
Plan / Schéma Directeur
PAP
Wunnbebauung
Altrier
Brouch
Hemstel
Maarnech
Mutfert
Mënsbech
Reiland
Rodange
Aktivitéiten
Environnement
Raumplanung - Étuden
Freiraumplanung
Architektur
Urbanistesch Concoursen