Moutfort

Partie graphique PAP
Comparaison entre la situation existante et la situation projetée – Affectation et volumétries
Coupe schématique

privé
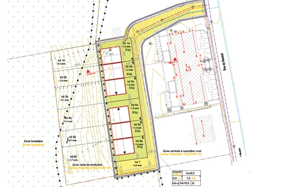
Plan d'aménagement particulier (PAP) Maisons unifamiliales en rangée Moutfort – Concept
31 ares, finalisation 2008